Quick Enquiry

Residential Plots Siyom Tvasta
Logo
Upcoming Projects

JMD Regent Square – Premium Grade A Office Building in Sector 25, Gurgaon

JMD Regent Square – Premium Grade A Commercial Office Space in Sector 25, Gurgaon

JMD Regent Square is a landmark Grade A commercial building on MG Road, Sector 25, Gurgaon. Strategically positioned near MG Road Metro Station, this project offers fully-equipped office spaces for businesses looking for premium commercial property in Gurgaon.

Developed by the reputed JMD Group, the project reflects futuristic infrastructure, robust facilities, and a prime location. It is surrounded by top corporate hubs like DLF Cyber City, Udyog Vihar, and IFFCO Chowk, making it a high-demand zone for investors and working professionals.

JMD Regent Square Gurgaon is ideal for MNCs, startups, consultancies, and co-working spaces. Its excellent visibility, metro access, and business-friendly environment make it one of the best options for those planning to buy office space on MG Road Gurgaon.

Key Highlights of JMD Regent Square Gurgaon

World-Class Amenities at JMD Regent Square

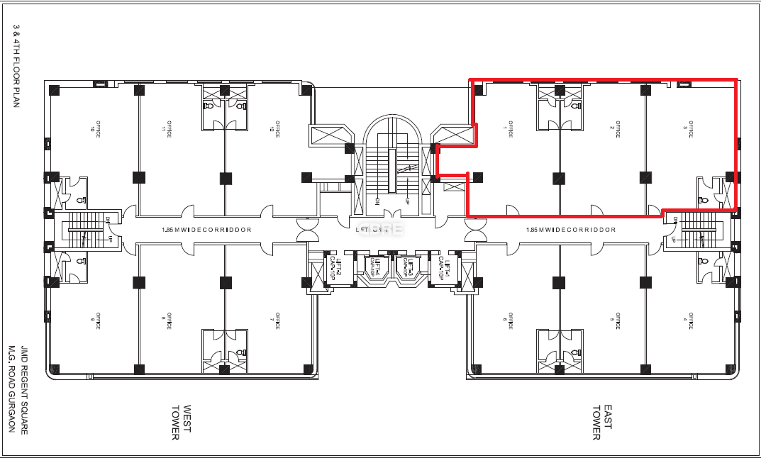
JMD Regent Square – Site Plan

JMD Regent Square MG Road is thoughtfully designed to optimize space, access, and movement. The project covers a wide frontage on MG Road with separate entry and exit points for smooth traffic flow.

The site plan integrates commercial retail at the ground level and multiple floors of office spaces above, ensuring a seamless commercial ecosystem. Central courtyard, emergency exits, and service corridors are strategically placed for convenience and safety.

JMD Regent Square Site Plan

JMD Regent Square – Area & Price Details

Unit Type Area (Sq. Ft.) Price Range
Commercial Office Unit 500 – 5000 Sq.ft ₹1.2 Cr – ₹10 Cr*

*Prices may vary based on floor, view & unit size. Contact our team for best offers.

Strategic Location Benefits – MG Road, Sector 25 Gurgaon

Why Invest in JMD Regent Square, Gurgaon?

About JMD Group

JMD Group is one of the most renowned developers in Delhi NCR, known for its exceptional quality and timely delivery in commercial real estate. With iconic projects like JMD Megapolis, JMD Regent Arcade, and JMD Pacific Square, the group continues to shape Gurgaon's skyline with cutting-edge infrastructure.