Siyom Tvasta
Logo
Upcoming Projects

Quick Enquiry

Orchid Island

Sector 51, Gurugram, Haryana 122003, India

Enquire Now
Paras Dews Sector 106, Gurugram

Orchid Island:

Orchid Island is ready to move 2, 3, 4 BHK+(store and servant room) independent floors in sector 51 Gurgaon (Ground +2 floors).

At Orchid Island, each dwelling unit will have living and dining rooms with acrylic emulsion painted walls, vitrified tile floors, European style flush panel doors with hardwood frames, UPVC window panes, and painted OBD ceilings. The kitchens will have ceramic tiles till 2 feet above the counter, ceramic tile floors, European style flush panel doors with hardwood frames, UPVC window panes, granite counters with SS sink single bowl, CP fittings, and painted OBD ceilings.

Orchid Island spread across an abundant land parcel is a well-planned residential project. Orchid Island is developed by a trusted real estate group. Orchid Island, which is so much au fait with the latest technology and modern designs offers the 2BHK, 3BHK, and 4BHK builder floors with adjoining study room for kids. The different combinations of floor plans offer pooja room and servant quarters also. With proximity to all the important locations of the city, Orchid Island is well connected by all modes of transportation.


Highlight:

  • 2 Kms From Proposed Metro Line.
  • Ground, 1st & 2nd Floor Units.
  • Ground floor unit with garden.
  • First and second floor units with terrace.
  • Lavish outdoor and indoor space.
  • Shopping, Medical & Schools facilities at very close proximity.
  • 100% Power Back Up & Three tier security.
  • Personal Parking for each floor.
  • Centralized maintenance.
  • Located on a prominent 30 meters wide road.
  • Close proximity to Metro, N.H 8, Sohna road, Extended Golf course road.

Specifications:

MASTER BEDROOM:
  • Walls: Acrylic Emulsion Paint
  • Floors: Laminated wooden flooring or equivalent
  • Doors: Hardwood door frame with European style Flush panel
  • Windows/Glazings: Aluminum/UPVC
  • Ceilings: Painted OBD
LIVING/ DINING:
  • Walls: Acrylic Emulsion Paint
  • Floors: Vitrified Tile or equivalent
  • Doors: Hardwood door frame with European style Flush panel
  • Windows/Glazings: Aluminum/UPVC
  • Ceilings: Painted OBD
KITCHEN:
  • Walls: 2’ high Ceramic tiles above counter
  • Floors: Ceramic Tile or equivalent
  • Doors: Hardwood door frame with European style Flush panel
  • Windows/Glazings: Aluminum/UPVC
  • Ceilings: Cement Plaster with paint
  • Others: Granite counters with SS Sink single bowl and CP fittings
TOILETS:
  • Walls: 7’ high Ceramic Tiles rest painted
  • Floors: Anti skid Ceramic Tiles or equivalent
  • Doors: Hardwood door frame with European style Flush panel
  • Windows/Glazings: Aluminum/UPVC
  • Ceilings: Cement Plaster with paint
  • Others: Granite/Marble counters, White sanitary fixtures & C.P. fittings Provision for hot & cold water supply system

Location Advantage:

  • 16.7 km away from IGI Airport
  • 5.3 km away from National Highway 8 (width: 60m/150m)
  • 6.1 km away from Sohna Road which houses many businesses and retail centres
  • 2.6 km away from Golf Course Extension Road
  • Artemis Hospital in close proximity
  • Amity International School less than 2 km away

Amenities

  • ✔ 24/7 Water Supply
  • ✔ Car Parking
  • ✔ Children’s Play Area
  • ✔ Club House
  • ✔ Fire Fighting Systems
  • ✔ Gymnasium

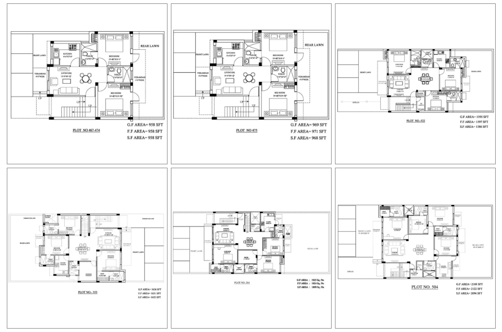
Price List:

BHK Area (Sq.Ft) Cost
2 BHK 958 80 Lakhs onwards
2BHK + study 1365 1.22 Cr.
3 BHK 1586 1.37 Cr.
3BHK + Study 1640 1.42 Cr.
4 BHK 1925 1.66 Cr.
4BHK + Srt Room 2115 1.87 Cr.

Floor Plans:

Paras Quartier Site Plan

Location Map:

Paras Quartier Site Plan

Site Plan

Paras Quartier Site Plan